Cuidar da população dotando os territórios de equipamentos e infraestruturas públicas de qualidade serão sempre premissas cruciais para as políticas e estratégias de integração e bem-estar social, constando dos objetivos de quem intervém ativamente no território. Abraçamos o desafio de cuidar das diferentes gerações com projetos que estimulem o corpo e mente, também com uma vertente pedagógica e de equilíbrio ambiental.










Este projecto trata-se de uma intervenção que irá contribuir significativamente para o reforço e revitalização do turismo de natureza da freguesia de Santa Maria, em Manteigas , valorizando e respeitando os valores naturais do Parque Natural da Serras da Estrela e contribuindo para a promoção do desenvolvimento sustentável da região, assim como dos produtos tradicionais e património local. De um modo geral, o projeto tem como objectivo requalificar os dois edifícios, valorizar todo o património e elementos endógenos de modo a criar as condições necessárias para que a comunidade local e restante população possam usufruir e contemplar este património Natural com especificidades únicas.






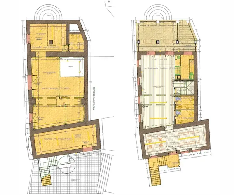
Este projeto envolveu a refuncionalização de um espaço existente para a criação de um Museu Etnográfico, que se desenvolve não só no edifício como em todo espaço exterior.
O espaço exterior foi dotado de elementos associados ao ciclo do pão, que inclui desde o campo de cultivo, ao espigueiro e eira, e aos moinhos e fornos comunitário.
No espaços interiores foram criadas zonas de exposição assim como espaços para eventos e workshops.







O projeto Casa de São Miguel – Espaço cultural e Museológico prevê reabilitação e refuncionalização de um edifício, uma antiga habitação, para criação de um casa cultural e núcleo museológico, privilegiando o património material e imaterial, o qual merece ser devidamente preservado no tempo. Estas intervenções são complementadas por todas as dinâmicas que se prevêem realizar. Objetivo geral pretende valorizar, conservar e preservar o património, natural, cultural, histórico e religioso que existe na Paróquia de Caparrosa, União de Freguesia de Caparrosa e Silvares, concelho de Tondela e Diocese de Viseu. Trata-se de assumir a importância das mais-valias locais, criando-se as condições necessárias e seguras para que a comunidade local possa usufruir destes espaços, assim como partilhar experiências, vivências e conhecimento entre a população local.



Neste edifício, outrora destinado a habitação e ao comércio, foi desenvolvido um projeto que incidiu na sua refuncionalização como espaço museológico etnográfico para divulgação e valorização da cultura local.
Esta proposta de adaptação da pré existência edificada para a museu permitirá oferecer à comunidade local e aos turistas e visitantes, um espaço com dignas condições para continuar a enaltecer o património cultural deste território.



O Centro Cultural e Social de Ninho do Açor é um espaço dedicado à preservação das tradições, do património e da identidade local. Instalado num edifício histórico recuperado, o centro reúne um espólio de arte sacra e literatura, promovendo também a cultura do azeite, produto emblemático da região. Com uma biblioteca, áreas para exposições e eventos, e um espaço para workshops e formações, o centro pretende dinamizar a comunidade e atrair visitantes, proporcionando experiências imersivas ligadas à história, aos saberes tradicionais e ao património cultural de Ninho do Açor e Sobral do Campo.



O Centro Interpretativo Aquilino Ribeiro, localizado na antiga escola primária de Soutosa, é um espaço dedicado à preservação e divulgação da vida e obra do escritor. Com uma exposição permanente, áreas para eventos culturais e espaços de leitura, o centro pretende ser um ponto de referência na promoção do legado literário de Aquilino Ribeiro. Através de atividades educativas, visitas guiadas e eventos temáticos, o espaço oferece uma experiência imersiva, permitindo aos visitantes conhecer a história, o ambiente e a inspiração por trás das “Terras do Demo”. Este projeto reforça a identidade cultural da região e dinamiza o turismo literário e patrimonial.



Neste edifício, outrora um centro de saúde foi desenvolvido um projeto que incidiu na sua refuncionalização como espaço museológico etnográfico para divulgação e valorização da cultura local.
Esta proposta de adaptação da pré existência edificada para a museu permitirá oferecer à comunidade local e aos turistas e visitantes, um espaço com dignas condições para continuar a enaltecer o património cultural deste território.


Neste edifício, que outrora acolheu uma escola primária, foi desenvolvido um projeto de requalificação com vista à sua transformação num espaço interpretativo dedicado à valorização da cultura local e ao apoio à Rota dos Espigueiros do Caramulo.
A proposta de adaptação deste imóvel pré-existente a funções museológicas permitirá disponibilizar à comunidade, aos turistas e visitantes um espaço com condições adequadas para continuar a promover e dignificar o património cultural do território.


Antigo edifício escolar, este espaço foi alvo de uma intervenção que visou a sua reconversão num centro interpretativo dedicado à cultura local e à dinamização da Rota da Transumância de Vilares e Carnicães.
A adaptação do imóvel para fins museológicos cria um novo recurso para a comunidade e para quem visita o território, contribuindo para a preservação e valorização do seu património cultural.

Este projeto corresponde à alteração de edifício da Associação Recreativa Cultural e Ecológica para reformulação de um dos seus volumes no novo Centro de Dia, procurando ampliar e melhorar a oferta de serviços nesta área, num território bastante carenciado e com uma significativa população idosa. Para além da definição das novas relações com a envolvente, as alterações nos espaços interiores pretendem adaptar a estrutura existente às necessidades de acolhimento e serviços, nomeadamente refeições, convívio e ocupação, cuidados de higiene, tratamento de roupas, férias organizadas ou, ainda, serviços de refeições ao domicílio ou apoio domiciliário.

Promovido pela Associação de Solidariedade Social de Caparrosa, este projeto pretende atualizar a capacidade de resposta residencial através do aumento da sua Estrutura Residencial para Pessoas Idosas (ERPI), num território de baixa densidade e vulnerável à exclusão social. Integrado numa candidatura ao Programa de Alargamento da Rede de Equipamentos Sociais (PARES), a ERPI de Caparrosa para além de reforçar o acolhimento aos idosos, irá promover certamente uma melhoria sustentada na qualidade de vida e bem-estar dos seus utentes, também através da resposta especializada na prestação de serviços de saúde a pessoas com doenças degenerativas e outras.


O projecto inclui as obras de beneficiação da Capela N.ª Srª da Saúde e arranjos exteriores e surgiu da necessidade de beneficiar e substituir as estruturas que se encontram degradadas e em risco de colapso. O principal objetivo foi a conservação e substituição dos revestimentos da fachada principal, como também a demolição e substituição da torre sineira existente por um campanário em pedra de granito, de forma assegurar e respeitar a sua identidade e o traço original da Capela de N.ª Srª da Saúde. A proposta contemplou também a beneficiação ao nível dos arranjos exteriores, designadamente a requalificação dos acessos pedonais, garantindo a segurança e acessibilidade a pessoas com mobilidade condicionada.


A proposta para o Centro de BTT de Caparrosa pretendeu cumprir todos os requisitos necessários no que diz respeito aos percursos de BTT demarcados, instalações sanitárias e balneários, estação de reparação e lavagem de bicicletas, etc. Para além disto foi proposta a criação de uma pista com dimensões oficiais para as modalidades de BMX e Four-Cross (4X), uma zona para a prática de Trial Bike e uma Pump Track. Em sintonia com estas intervenções foi proposto ainda um arranjo paisagístico da envolvente da pista, bem como a criação de zonas de lazer, parque de merendas e parque de estacionamento.

Este Projecto visa a requalificação da Piscina da Póvoa do Concelho e respectivos Balneário e enquadra-se numa obra de alteração de edifício, “sem aumento da área de pavimento da implantação ou da cércea”, conforme e) do Art.º 2º do Decreto-Lei 555/99, de 16 de Dezembro, na tua atual redação. A estratégia de intervenção procura dotar o edifício dos balneários, zona do pessoal técnico / posto de socorro (antigo anexo) e piscina existentes, das condições necessárias à sua perfeita utilização, de forma segura e funcional, garantindo o cumprimento dos requisitos inerentes a uma piscina de aprendizagem e recreio.

A Geo21 prestou apoio técnico ao processo de licenciamento do campo de padel em Lordosa, no concelho de Viseu. O trabalho envolveu a preparação dos elementos necessários à instrução do pedido junto das entidades competentes, assegurando o cumprimento das normas legais e regulamentares aplicáveis.
Este apoio permitiu viabilizar a instalação de uma nova infraestrutura desportiva ao serviço da comunidade, promovendo a dinamização local através da prática desportiva e da valorização dos equipamentos de proximidade.
Agente Geo21