Mais sobre os nossos projetos

Projetar o Futuro

O desenvolvimento urbano sustentável implica promover uma relação mais direta, flexível e adaptável entre o sistema urbano e as mudanças da sociedade e do seu processo natural de desenvolvimento, harmonizando as dimensões ambiental, económica e social. Além disso, as políticas atuais contribuem para o reforço estratégico do desenvolvimento integrado, sustentável e resiliente dos aglomerados urbanos, com o objetivo de torná-los mais justos, mais verdes e mais produtivos. Elementos fundamentais para a melhoria das condições de vida dos cidadãos.
No âmbito do turismo, os novos padrões de comportamento e consumo das sociedades atuais tendem a desafiar a lógica da oferta turística massificada. Isso faz emergir a necessidade de criar novos produtos e soluções de desenvolvimento diferenciados e de qualidade, que aproveitem ao máximo os recursos locais, e nos orgulhamos de contribuir para isso. Assim, surgem projetos de grande importância paisagística que valorizam o património natural e cultural, promovem a coesão e valorização dos territórios.

O nosso portfólio

Parques Verdes Urbanos

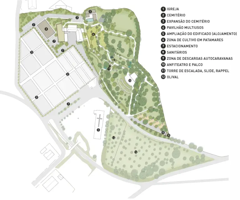
ARRANJOS URBANÍSTICOS E PAISAGÍSTICO DO TERRENO ANEXO À RESIDÊNCIAL PAROQUIAL DE BODIOSA

A intervenção na residência paroquial de Bodiosa pretende requalificar e ampliar o edifício existente para alojamento do pároco, apoio às funções sociais e religiosas da paróquia (catequese, escuteiros, etc), criação de um espaço museológico do principal espólio religioso da paróquia, e alojamento de turismo religioso, social e desportivo.
A proposta nos espaços exteriores pretendeu criar zonas de atividades desportivas, recreio e lazer ao ar livre, um pavilhão multiusos para albergar eventos e balneários, requalificar o anfiteatro existente, reformulação das acessibilidades pedonais e viárias, criação de um jardim/horta de plantas aromáticas e medicinais bíblicas, assim como a criação de um parque de autocaravanismo.

FRENTE RIBEIRINHA DE VILA DE CORÇA

Esta intervenção visou criar um espaço para fruição da natureza ordenado e sustentável, com uma forte interação entre os espaços naturais e as atividades de recreio, lazer e desporto, na frente ribeirinha de Vila Corça, na albufeira da Barragem de Fagilde, no concelho de Viseu.
Assim foi proposto um passadiço ao longo da frente ribeirinha, tendo-se previsto uma praia fluvial, ancoradouros para embarcações motorizadas e não motorizadas, locais e equipamentos para pesca desportiva, parque de merendas, bar e restaurante, campos de jogos, wakeboard, etc.
Todas estas intervenções são envolvidas num arranjo das estruturas naturais existentes e num enquadramento paisagístico mais digno para este território.

PARQUE URBANO E ETNOGRÁFICO DE SERRA D'EL-REI

Esta intervenção divide-se em dois momentos.
O primeiro visa a criação de um parque temático e etnográfico, mais dedicado ao ensino das atividades tradicionais, nomeadamente da agricultura, da pastorícia, da moagem do cereal, entre outras.
O segundo momento passa pela criação de uma zona a norte, mais de parque urbano direcionado, para atividade física e lazer, normalmente através da criação de um campo de jogos, outro de jogos tradicionais, parque de merendas, assim como várias zonas ajardinadas direcionas para atividade física, de lazer e contemplação deste enquadramento rural.

ARRANJOS URBANÍSTICOS E PAISAGÍSTICO DO TERRENO ANEXO À RESIDÊNCIAL PAROQUIAL DE BODIOSA

A intervenção na residência paroquial de Bodiosa pretende requalificar e ampliar o edifício existente para alojamento do pároco, apoio às funções sociais e religiosas da paróquia (catequese, escuteiros, etc), criação de um espaço museológico do principal espólio religioso da paróquia, e alojamento de turismo religioso, social e desportivo.
A proposta nos espaços exteriores pretendeu criar zonas de atividades desportivas, recreio e lazer ao ar livre, um pavilhão multiusos para albergar eventos e balneários, requalificar o anfiteatro existente, reformulação das acessibilidades pedonais e viárias, criação de um jardim/horta de plantas aromáticas e medicinais bíblicas, assim como a criação de um parque de autocaravanismo.

PARQUE ECOLÓGICO QUINTA DA AZENHA

O projeto visa a valorização e requalificação de um espaço de lazer existente junto ao rio Paiva, inserido numa área da Rede Natura 2000. Pretendia-se a criação de um parque ecológico dedicado à educação ambiental, ao recreio e ao turismo sustentável, com áreas interpretativas da fauna e flora, percursos acessíveis, miradouros e zonas de observação da natureza. A intervenção recorre a soluções sustentáveis, como iluminação solar e materiais naturais e reciclados. Tem como objectivo ser um motor de dinamização do turismo de natureza, promovendo a identidade local e fortalecendo a economia da freguesia, contribuindo para um desenvolvimento sustentável e coeso.

 
  • Parque Urbano da Sabacheira 

O nosso portfólio

Parques e Praias Fluviais

PRAIA FLUVIAL DO VIMIEIRO

Esta proposta pretendeu dotar a Praia Fluvial do Vimieiro de novas estruturas e infraestruturas de apoio à zona balnear, requalificando o espaço ribeirinho de forma a potenciar um aumento da atratividade turística, de recreio e lazer da praia e da sua região, criando boas condições para a sua utilização e diversificando a oferta do espaço.
Para além disso, criaram-se áreas de estacionamento ordenado, propondo-se a sua concentração em duas bolsas de parqueamento quer para a mobilidade condicionada, quer para autocarros.

PARQUE FLUVIAL DO CARAPITO

Este projeto pretendeu criar uma área de recreio e lazer diversificada, nomeadamente a criação de uma piscina, que constituirá o ex-líbris da freguesia, assim como de equipamentos e serviços complementares à zona balnear.
Dos equipamentos propostos destacam-se toda a zona ativa que integra um campo polidesportivo, um campo de jogos tradicionais, um circuito de manutenção com equipamentos geriátricos e um parque infantil, assim como um edifício que integrará sanitários e balneários para os utilizadores do espaço. Como serviço complementar este mesmo edifício contempla ainda uma cafetaria e sala para primeiros socorros.

PARQUE FLUVIAL DE CAPARROSA

Esta proposta pretendeu dotar o Parque Fluvial de Caparrosa de estacionamento ordenado, propondo-se a sua concentração em duas bolsas de estacionamento com mobilidade condicionada e estacionamento de autocarros.
Foram criadas novas estruturas e infraestruturas de apoio à zona balnear, requalificado o espaço ribeirinho de forma a potenciar um aumento da atratividade turística, de recreio e lazer da praia e da sua região, criando boas condições para a sua utilização e diversificando a oferta do espaço.

  • Beneficiação da Praia Fluvial de Segões
  • Praia Fluvial dos Montes
  • Requalificação da Praia Fluvial do Agroal (Tomar)
  • Parque Fluvial das Lajes
  • Parque Fluvial de Mondim
  • Requalificação da Praia Fluvial de Unhais da Serra

O nosso portfólio

Parques de Campismo e Autocaravanismo

ASA DE FIGUEIRÓ DA GRANJA

O projecto pretendeu criar um Parque de Lazer e Autocaravanismo na freguesia de Figueiró da Granja que permitisse valorizar os espaços com potencial para a fruição na freguesia, diversificar a oferta do espaço de recreio, cultura lazer e desporto e dinamizar a economia local. A intervenção incluí a criação de acessos pedonais acessíveis a pessoas com mobilidade condicionada, um campo de jogos e um parque de merendas. O projecto teve sempre em consideração a sua integração na paisagem envolvente na potencialização da biodiversidade endógena.

ASA DE LEOMIL

Este projeto pretendeu valorizar o enquadramento paisagístico agrícola e montanhoso da envolvente da área de intervenção, criando uma ASA com uma estação de serviço de autocaravanas, com todos os serviços necessários, assim como uma zona de merendas, e espaços verdes multifuncionais.
Fora da área vedada da ASA é ainda proposto um edifício de apoio com cafetaria e balne-ários, áreas de estacionamento automóvel, espaços verdes de enquadramento e um parque infantil.
Todos espaços se encontram ligados através de percursos pedonais propostos.

ASA DE MONDIM

Este projeto pretendeu criar uma Área de Serviço de Autocaravanas (ASA), com uma estação de serviço de autocaravanas (ESA), com todos os serviços necessários ao despejo de águas cinzentas, castanhas e abastecimento de água potável, assim como o arranjo de parte da margem esquerda do Rio Zonho. É proposta uma via de acesso à ASA com estacionamento, assim como um edifício de apoio aos utilizadores. Foram ainda propostas várias áreas verdes de enquadramento e de estadia/recreio na envolvente e na margem do rio, nomeadamente uma zona de merendas. 

ASA DE BARRANCOS

Este projeto consistiu na criação de uma Área de Serviço de Autocaravanas (ASA), equipada com uma Estação de Serviço de Autocaravanas (ESA) que inclui pontos para despejo de águas cinzentas e negras, além de abastecimento de água potável. A intervenção incluiu a requalificação da área envolvente, com a criação de zonas de estacionamento e acessos ajustados às necessidades dos utilizadores.

Barrancos, conhecido pelo seu património cultural único, é um destino encantador para os amantes da natureza e da história. Com a ASA, o município reforça o acolhimento ao turismo itinerante, promovendo a exploração das riquezas locais, como o Parque Natural do Vale do Guadiana e a gastronomia típica da região.

ASA DE AGRELA E SERAFÃO

A Área de Serviço de Autocaravanas (ASA) de Agrela e Serafão foi desenvolvida para oferecer suporte completo aos autocaravanistas, com uma Estação de Serviço de Autocaravanas (ESA) equipada para o despejo de águas cinzentas e negras, abastecimento de água potável e estacionamento dedicado. Integra-se harmoniosamente na paisagem, oferecendo aos visitantes acesso direto a áreas naturais e espaços de lazer, como mesas de piquenique e zonas verdes.

Este projeto valoriza a riqueza natural e cultural da região, destacando-se pela proximidade a patrimónios históricos, como a Igreja de Santa Cristina e a Capela de Nossa Senhora do Rosário. Agrela e Serafão convidam os visitantes a desfrutar da tranquilidade da natureza e das tradições locais, complementadas pela deliciosa gastronomia regional.

REQUALIFICAÇÃO DA ASA E PRAIA FLUVIAL DE UNHAIS DA SERRA

Este projeto melhorou a Praia Fluvial e a Área de Serviço de Autocaravanas (ASA) de Unhais da Serra, no Parque Natural da Serra da Estrela. A praia fluvial recebeu melhorias nas áreas de lazer e segurança, enquanto a ASA foi equipada com serviços essenciais para autocaravanistas, como abastecimento de água e despejo de resíduos. A intervenção promove o turismo sustentável, valoriza o património natural e cultural local e dinamiza a economia da região.

REQUALIFICAÇÃO DO PARQUE DE CAMPISMO MUNICIPAL DA PRAIA DA AREIA BRANCA

A Geo21 prestou assessoria técnica à Câmara Municipal da Lourinhã no âmbito do projeto de requalificação do Parque de Campismo da Praia da Areia Branca, acompanhando todas as fases do processo concursal.
O trabalho envolveu uma abordagem multidisciplinar, com destaque para a definição da estratégia de intervenção e a elaboração de estudos prévios de arquitetura e paisagismo, promoção e animação turística, viabilidade económica e financeira, bem como apoio administrativo e jurídico ao processo de concurso.
O projeto prevê a criação de diferentes tipologias de alojamento — campismo, caravanismo, glamping e bungalows — organizadas em torno de três temáticas identitárias do território: Sol e Mar, Pedro e Inês, e Paleontologia.
Esta intervenção representa um importante contributo para a valorização da oferta turística local, reforçando a atratividade do concelho e promovendo um modelo de desenvolvimento territorial sustentável e ancorado na identidade da Lourinhã.

ASA DA GRAÇA - PEDROGÃO GRANDE

A Área de Serviço de Autocaravanas da Graça, desenvolvida pela Geo21, é um espaço moderno e integrado no ambiente natural e cultural da região de Pedrógão Grande. O projeto inclui um edifício de apoio com receção, zona de estar, copa, lavandaria e instalações sanitárias acessíveis, bem como áreas de estacionamento, parque de merendas e campo de jogos tradicionais. Pensado para promover o turismo sustentável e o convívio entre visitantes e comunidade, o parque valoriza o património local e contribui para o desenvolvimento económico e social da região, oferecendo aos autocaravanistas um ponto de paragem confortável, seguro e em harmonia com a paisagem envolvente.

  • Área de Serviço para Autocaravanas de Lagos